
Type:CX-PS-SC контроллер давление
Illustrate:Данный контроллер использует элементы датчиков типа диафрагм, контроллер обычного типа может автомотический контролизовать на места..
Данный контроллер использует элементы датчиков типа диафрагм, контроллер обычного типа может автомотический контролизовать на местах не коррозионного газа, жидкости или пара,диапазон давления регулировки от 0-25KPa.
Противовзрывный тип Exed II CT6, контроллерможет автомотический контролизовать на местах не коррозионного газа, жидкости или параIIA, IIB и IIC Тип T1~Т6
Если вам нужны тип окна обратите внимание, у нас есть SP стациональная мертвая зона и SPA регулируемая мертвая зона
Таблица для выбора контроллера:
Параметры :
Таблица предела измерения:
Соединение давления:
Температура среды:
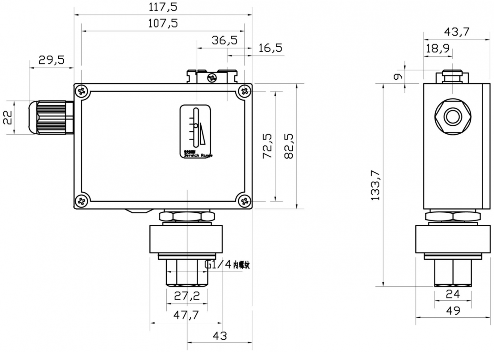
габарит:

PS-SC металлическая диафрагма

PS-SCC металлическая диафрагма

PS-SC микро-дифференциальное давление

Противовзрывный тип Exed II CT6, контроллерможет автомотический контролизовать на местах не коррозионного газа, жидкости или параIIA, IIB и IIC Тип T1~Т6
Если вам нужны тип окна обратите внимание, у нас есть SP стациональная мертвая зона и SPA регулируемая мертвая зона
Таблица для выбора контроллера:
SP | KK06/KG06 | E12 | S1L1 | E0S | LT |
давление | код |
E противовзрывный Sне противовзрывный 1.SPDT 2.DPDT |
Соединение давления 1. регулируемая мертвая зона 2. стациональная мертвая зона |
Соединение процесса |
Температура среды |
Параметры :
Обычный тип | Противовзрывный тип | |
Вязкость | ≤10-3m2/s | ≤10﹣3m2/s |
Элементы датчика | микропереключатель | микропереключатель |
Класс противовзрыва | / | ExedllCT6 |
Класс защиты | lP65 | lP65 |
Температура окружающий | -15℃—55℃ | -15℃—55℃ |
влажность | 5%—95% | 5%—95% |
Срок обслуживания | 105 | 105 |
антисейсмически | <Max·2g | <Max·2g |
Номинальная мощность | Vmax=380V Zmax=5A | Vmax=380V Zmax=5A |
погрешность | ≤1.0% | ≤1.0% |
Таблица предела измерения:
код | предел измерения | Мертвая зона | Частота обмена | Материал датчика |
KK02 | 0—2KPa | 30Pa | 10次/分 | нитрил-бутадиеновая резина |
KK06 | 0.5—6KPa | 0.2KPa | 10次/分 | нитрил-бутадиеновая резина |
KK25 | 1—25KPa | 0.3KPa | 10次/分 | нитрил-бутадиеновая резина |
GM040 | 0.02—0.4MPa | 0.03KMa | 10次/分 | 316L |
GM160 | 0.05—1.6MPa | 0.2MPa | 20次/分 | 316L |
GM250 | 0.05—2.5MPa | 0.25MPa | 20次/分 | 316L |
Соединение давления:
M20*1.5 (F/M) |
G1/2 (F/M) |
G1/4 (F/M) |
1/4”NPT (F/M) |
1/2”NPT (F/M) |
3/4”NPT (F/M) |
1/4”NPT (F/M) |
|
углеродистая сталь |
C1L/ C1L1 |
C2L/ C2L1 |
C3L/ C3L1 |
C4L/ C4L1 |
C5L/ C5L1 |
CL6/ C6L1 |
╱ |
304нержавеющая сталь |
S1L/ S1L1 |
S2L/ S2L1 |
S3L/ S3L1 |
S4L/ S4L1 |
S5L/ S5L1 |
S6L/ S6L1 |
S8L/ S8L1 |
316нержавеющая сталь |
S1S/ S1S1 |
S2S/ S2S1 |
S3S/ S3S1 |
S4S/ S4S1 |
S5S/ S5S1 |
S6S/ S6S1 |
S8S/ S8SL1 |
316Lнержавеющая сталь |
S1SL/ S1SL1 |
S2SL/ S2SL1 |
S3SL/ S3SL1 |
S4SL/ S4SL1 |
S5SL/ S5SL1 |
S6SL/ S6SL1 |
S8SL/ S8SL1 |
LT:ниже 180 | HT:ниже 450 | MT:нормальная |
габарит:

PS-SC металлическая диафрагма

PS-SCC металлическая диафрагма

PS-SC микро-дифференциальное давление

Предыдущий:CX-PS-SP контроллер .. следующий: переключатель д..