
Type:CX-PS-SP контроллер давление
Illustrate:Данный контроллер использует элементы датчиков как резинковая диафрагма/316L металлическая диафрагма, контроллер обычного типа может ..
Данный контроллер использует элементы датчиков как резинковая диафрагма/316L металлическая диафрагма, контроллер обычного типа может автомотический контролизовать на местах не коррозионного газа, жидкости или пара,диапазон давления регулировки от 0-25KPa.
Противовзрывный тип Exed II CT6, контроллерможет автомотический контролизовать на местах не коррозионного газа, жидкости или параIIA, IIB и IIC Тип T1~Т6
Если вам нужны тип окна обратите внимание, у нас есть SP стациональная мертвая зона и SPA регулируемая мертвая зона
Таблица для выбора контроллера:
Параметры :
Таблица предела измерения:
Температура среды:
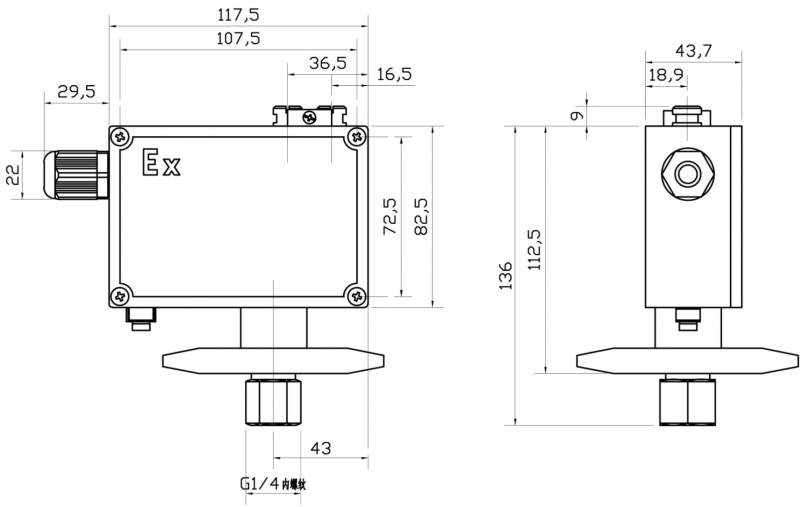
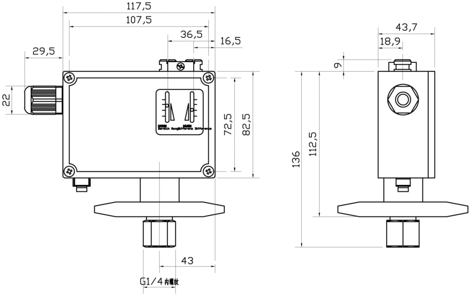
габарит:

PS-SP резинковая диафрагма

PS-SPC металлическая диафрагма

PS-SPметаллическая диафрагма

PS-SPA металлическая диафрагма
Противовзрывный тип Exed II CT6, контроллерможет автомотический контролизовать на местах не коррозионного газа, жидкости или параIIA, IIB и IIC Тип T1~Т6
Если вам нужны тип окна обратите внимание, у нас есть SP стациональная мертвая зона и SPA регулируемая мертвая зона
Таблица для выбора контроллера:
SP | KK06/KG06 | E12 | S1L1 | E0S | LT |
давление | код |
E противовзрывный Sне противовзрывный 1.SPDT 2.DPDT |
Соединение давления 1. регулируемая мертвая зона 2. стациональная мертвая зона |
Соединение процесса | Температура среды |
Параметры :
Обычный тип | Противовзрывный тип | |
Вязкость | ≤10-3m2/s | ≤10﹣3m2/s |
Элементы датчика | микропереключатель | микропереключатель |
Класс противовзрыва | / | ExedllCT6 |
Класс защиты | lP65 | lP65 |
Температура окружающий | -15℃—55℃ | -15℃—55℃ |
влажность | 5%—95% | 5%—95% |
Срок обслуживания | 105 | 105 |
антисейсмически | <Max·2g | <Max·2g |
Номинальная мощность | Vmax=380V Zmax=5A | Vmax=380V Zmax=5A |
погрешность | ≤1.0% | ≤1.0% |
Таблица предела измерения:
код | предел измерения | Мертвая зона | Частота обмена | Материал датчика |
KK01 | 0—1KPa | 30Pa | 10次/分 | нитрил-бутадиеновая резина |
KK06 | 1—6KPa | 0.2KPa | 10次/分 | нитрил-бутадиеновая резина |
KK25 | 1—25KPa | 0.5KPa | 10次/分 | нитрил-бутадиеновая резина |
GK01 | 0—1KPa | 30Pa | 10次/分 | 316L |
GK06 | 1—6KPa | 0.2KPa | 10次/分 | 316L |
GK25 | 1—25KPa | 0.5KPa | 10次/分 | 316L |
Температура среды:
LT:ниже 180 | HT:ниже 450 | MT:нормальная |

PS-SP резинковая диафрагма

PS-SPC металлическая диафрагма

PS-SPметаллическая диафрагма

PS-SPA металлическая диафрагма
Предыдущий:沒有了 следующий:CX-PS-SC контроллер ..